
豊洲に誕生した、マグロをテーマにしたラーメン専門店。
和の伝統技法を想起させる木組天井と、青の魚壁画が印象的な空間です。
観光客から地元客まで、多様な層が心地よく過ごせる設えを目指しました。
「料理の主役であるマグロに敬意を払い、設計でも“魚”を空間の中心に据えました。
天井の木組みは、伝統構法の抽象化として設計し、視線を引き上げながらも圧迫感のない構成に。
派手さではなく“印象に残る静けさ”を意識し、和のエッセンスを現代的に再構成しています。」
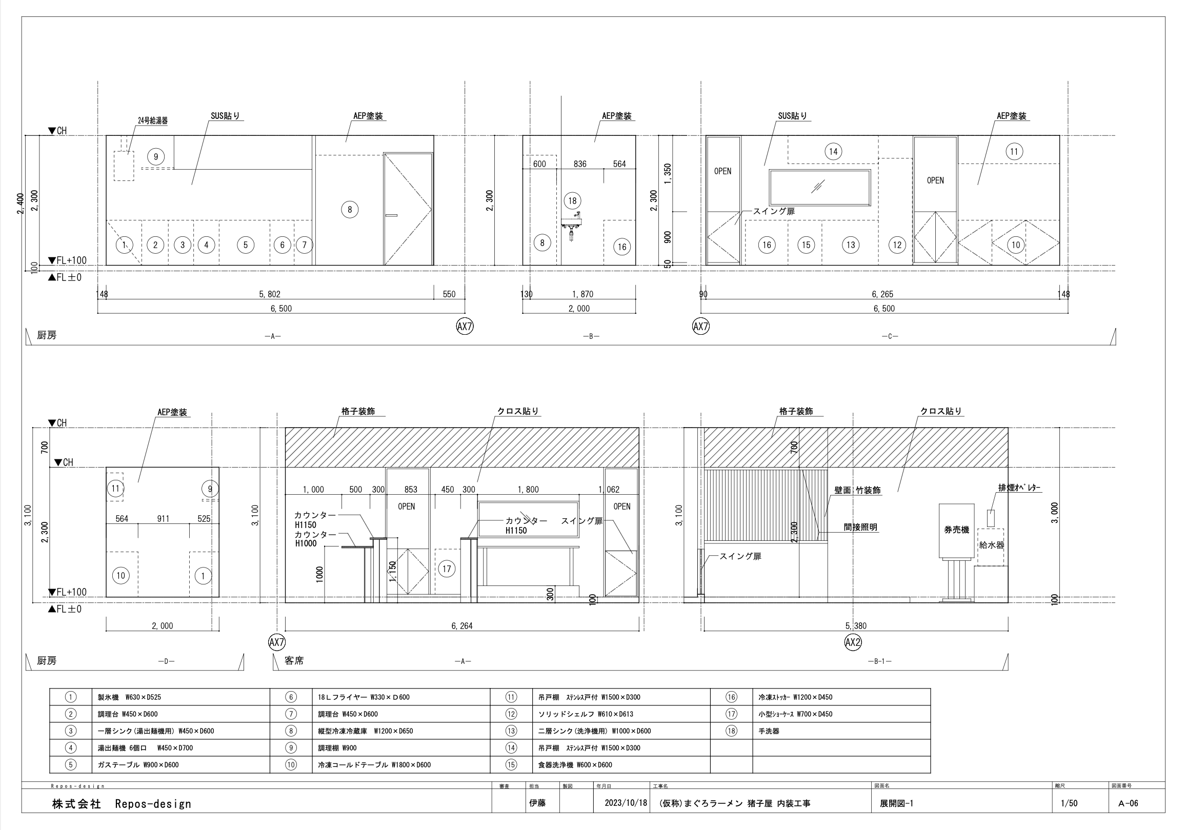
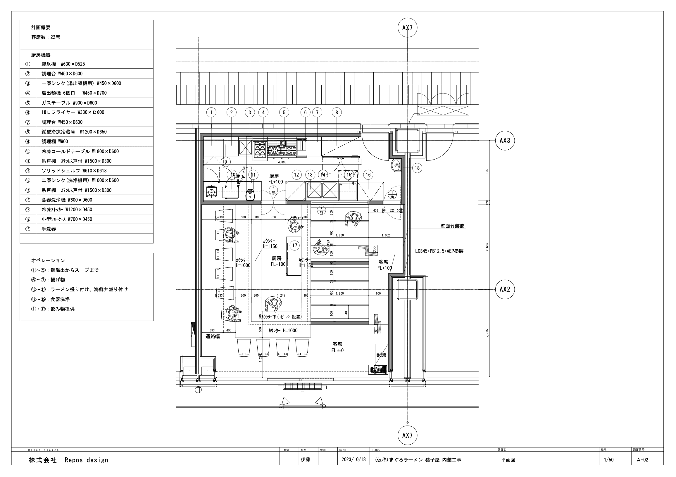
豊洲に新規開業したマグロラーメン店の内装設計・施工を担当しました。海の素材をテーマに、木材や石材を組み合わせたデザインで、温もりと清潔感を演出。カウンター席やテーブル席の配置に工夫を凝らし、限られたスペースでも快適に過ごせるよう配慮しました。照明計画にもこだわり、料理が美味しく見える光の演出を施しています。